Qualité au meilleur prix!
Système de porte-fenêtre à 1 et 2 rails pour châssis de fixes et vantaux.
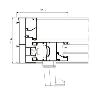
Il présente le rail caché dans les parties fixes et une esthétique droite en dormants et ouvrants.
Il existe la version GALANDAGE conçue pour permettre une ouverture intégrale en cachant totalement les vantaux à l’intérieur des murs adjacents. On obtient ainsi une surface
d'ouverture de 100%.
Ouvrant et dormant sont à coupe d’onglet.
Prise de vitrage jusqu’à: 30 mm
Applications Coulissante à 2 rails: À 2, 3 et 4 vantaux Coulissante à 1 rail: 1 vantail + 1 fixe 2 vantaux+ 2 fexesPossibilité galandage à 1 et 2 vantaux
Sections Dormant – 106 mm / Ouvrant – 45 mm
Épaisseur profilés Fenêtre 1,5 mm
Dimensions maximales/vantail Largeur (L) = 4.400 mm Hauteur (H) = 2.600 mm Porte fenêtre 2 vantaux Poids maximum/vantail 240 Kg
Consultez poids et dimensions maximales selon châssis
Finitions Laquage couleur (RAL, texturés, métalliques) Laquage ton bois Laquage antibactérien Anodisation
LES + TECHNIQUES
Exclusivité
GFERME
-
Technologie «GR 360»
-
Barrière Thermique Continue.
-
Système de ferrage sécurisé autobloquant
-
Rails inox.
-
Capot de finition latéraux dans la teinte du châssis
RÉALISATIONS






























.jpg)

.jpg)






